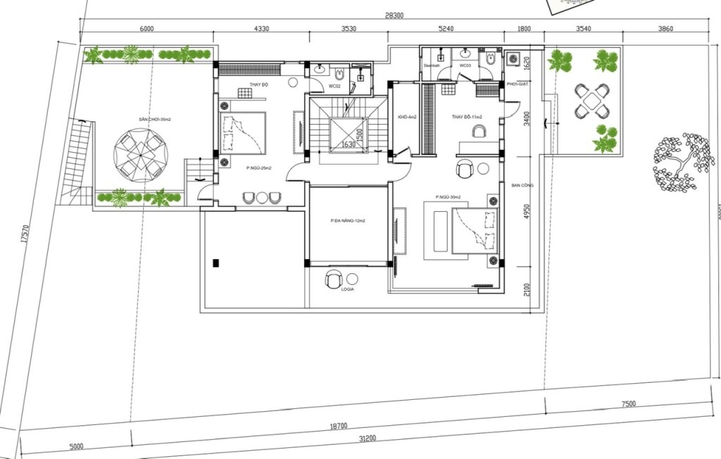
Em nhờ KTS thiết kế căn biệt thự nhà vườn. Nhà em quay hướng tây, 2 tầng. Tầng 1 gồm 01 PK, 01PN, 01 phòng thờ, 01 phòng bếp ăn, 01 phòng WC, cầu thang...; Tầng 2 gồm 02 PN ( 01 PN Master), 01 phòng SHC. Nhờ các cụ soi giúp em có gì chưa phù hợp không ạ. Em xin cảm ơn các cụ nhiều

, em xem qua thì thấy đẹp phết rồi, chỉ bổ sung cụ điều chỉnh cái cổng vào càng to càng tốt, căn làm sao góc cua ô tô thoải mái nhất có thể là pơ phệch. Giờ mua lũ lụt nhiều cố gắng tính toán nâng cốt nền cao thêm 2 bậc nữa