Em nhờ Ai tư vấn . Diện tích đất 73,2 m2 , mt 6m , vỉa hè 3 m. Cụ chủ thớt cho xin thêm gợi ý ah. Tks

TỔNG KẾT PHƯƠNG ÁN THIẾT KẾ CÔNG TRÌNH
(Nhà ở kết hợp kinh doanh – có thang máy – khống chế cao 15 m)

Thông tin khu đất
Diện tích đất: 6 × 12,2 m (≈ 73,2 m²)
Mặt tiền đường: 6 m
Chiều cao tối đa: 15,0 m
Loại công trình: Nhà ở riêng lẻ kết hợp kinh doanh dịch vụ

Quy mô & công năng
Bán hầm: để xe + kỹ thuật, lối thang xuất phát từ bán hầm
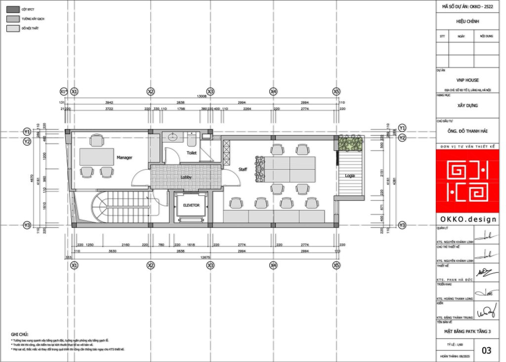
Tầng trệt: cửa hàng spa, trần cao, có gác xép nhỏ thông tầng
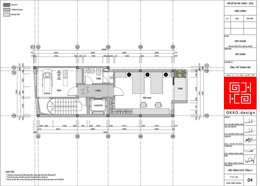
Tầng 1–2: 4 căn hộ dịch vụ khép kín (2 căn/tầng)
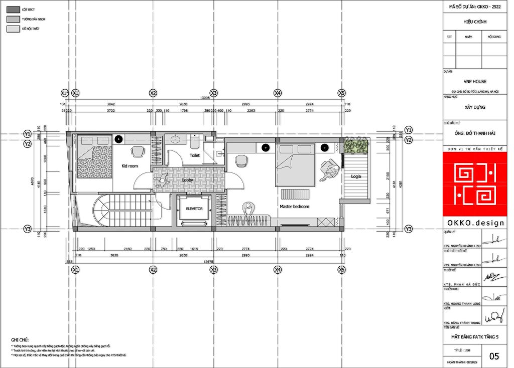
Tầng 3–4: nhà ở gia đình thông tầng
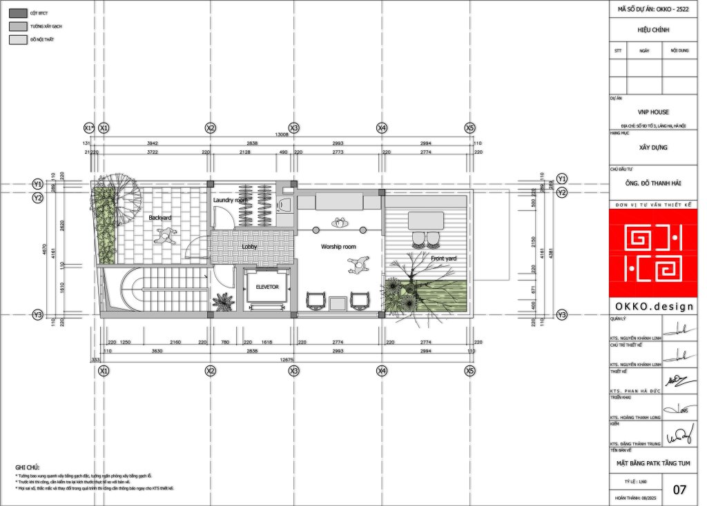
Mái: sân vườn, không tum, không xây phòng

Tổng tầng sử dụng: 5 (không tính gác xép & mái)

Phương án chiều cao chi tiết (đã tối ưu để có gác xép)
Khu vực
Chiều cao (m)
Ghi chú
Bán hầm (phần nổi)
1,20
Đúng quy chuẩn
Tầng trệt (spa)
4,80 – 4,90
Có gác xép
Tầng 1 (CHDV)
3,05
Giảm 25 cm
Tầng 2 (CHDV)
3,05
Giảm 25 cm
Tầng 3 (ở)
3,15
Giảm 25 cm
Tầng 4 (ở)
3,15
Giảm 25 cm
Sàn mái + chống thấm
~0,50
Không tum

Tổng cao ≈ 14,95 – 15,00 m → ĐẠT GIỚI HẠN

Gác xép tầng trệt (điểm nhấn phương án)
Chỉ làm tại tầng trệt
Diện tích ≤ 50–60% sàn tầng trệt
Không tính là tầng
Không bố trí WC riêng
Chiều cao tham khảo:
Dưới gác: ~2,4–2,5 m
Trên gác: ~2,0–2,2 m
Kết cấu nhẹ (thép + sàn nhẹ)

Công năng gác xép: phòng VIP spa / phòng trà / văn phòng quản lý / kho

Giao thông đứng & thang máy
Thang bộ + thang máy xuất phát từ bán hầm
Thang máy MRL (không phòng máy)
Tải trọng: 350 kg
Dừng: Bán hầm → Tầng 4
Kiểm soát ra vào:
Khóa thẻ từ từ tầng 3 trở lên
Tách luồng ở – kinh doanh – cho thuê

Mái sân vườn
Chỉ sử dụng làm:
Sân vườn
Giặt phơi
Thư giãn – BBQ
Không tum, không xây phòng
Mái che nhẹ, hở (pergola/bạt)
Lan can cao 1,2–1,4 m (không tính chiều cao)