[Funland] Xin các cụ giúp góp ý bố trí mặt bằng

tomza

Xe buýt
Biển số
OF-538143
Ngày cấp bằng
22/10/17
Số km
899
Động cơ
43,659 Mã lực
Nơi ở
Chủ yếu trong nhà
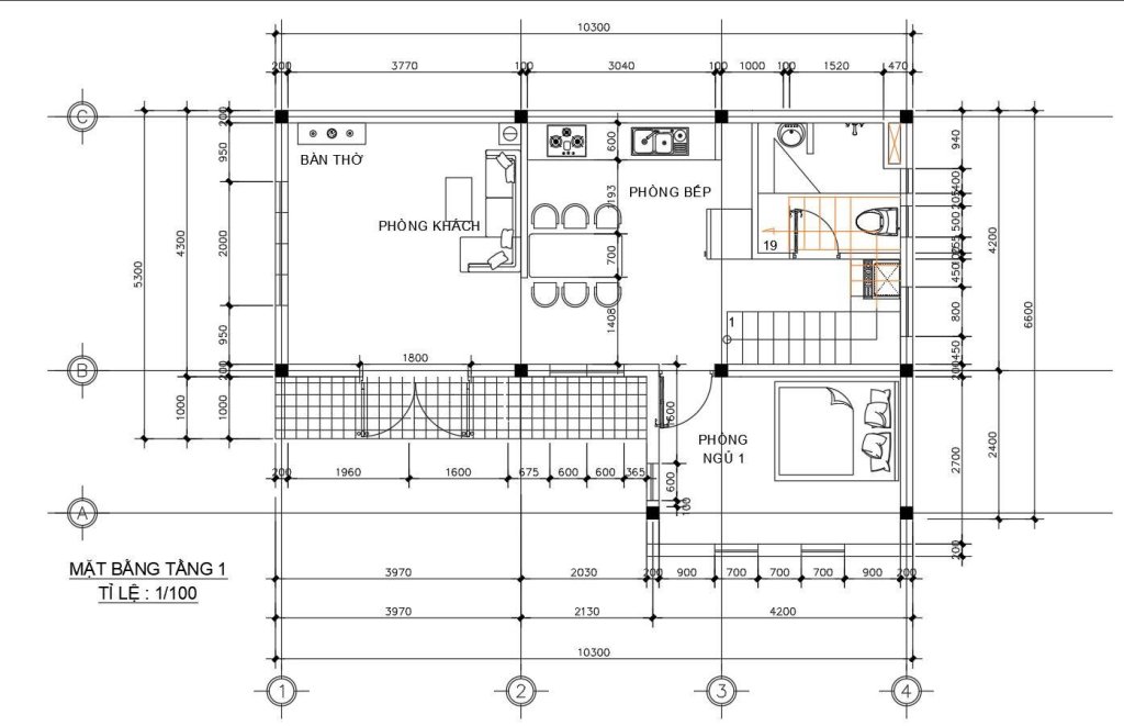
Kinh nhờ các cụ có chuyên môn, kinh nghiệm giúp đỡ góp ý về bố trí mặt bằng nhà, rất mong các cụ góp ý cho đôi dòng để em mở mang thêm, xin đội ơn các cụ.

Cũng xin trình bày thêm là: căn LK của em đã xây thô, TK ban đầu không có thang máy, nay muốn hoàn thiện mục đích để ở, muốn thêm cái thang máy nên phải bố trí lại đâm ra hơi khó, em chưa gặp bên thiết kế để có bản vẽ, nhưng em cũng đã hình dung trước bố trí theo nhu cầu gia đình là tầng 1 khách+bếp+gara, tầng 2 cho hai vợ chống già, tầng 3 cho các con, tầng 4 phờ thờ, phòng phơi đồ, hình dung xong thì em nháp lên bản vẽ.

Kính nhờ các cụ giúp góp ý với, nếu không thì các cụ bỏ quá cho, cám ơn các cụ.

MB1a.jpg
MB2a.jpg
Mb3a.jpg
MB4a.jpg
 

nvh_hn

Xe lăn
Biển số
OF-13579
Ngày cấp bằng
28/2/08
Số km
10,214
Động cơ
1,132,919 Mã lực
Em đang thấy có vẻ cụ sẽ thiếu vệ sinh từng tầng; khu giặt, phơi của cụ không có nắng, gió.
 

tomza

Xe buýt
Biển số
OF-538143
Ngày cấp bằng
22/10/17
Số km
899
Động cơ
43,659 Mã lực
Nơi ở
Chủ yếu trong nhà
Cám ơn cụ, về chỗ phơi thì đúng là thiếu nắng thiếu gió, em cũng chưa biết tính sao.
Còn về WC thì em nghĩ là đủ, tầng 1 có, tầng 2, 1 WC là đủ cho 2 vợ chồng, còn tầng 3 thì có 2 wc cho 2 cháu, tuy nhiên bố trí tầng 3 là em không ưng vì phòng méo mó quá,

Nhà em cũng ít khách, nếu có khách thì dùng vs tầng 4 hoặc cùng gđ cũng được
 

nvh_hn

Xe lăn
Biển số
OF-13579
Ngày cấp bằng
28/2/08
Số km
10,214
Động cơ
1,132,919 Mã lực
Em cầm đt ngại ngó chi tiết nhưng với loại hình phân lô, theo em nếu điều chỉnh thiết kế khép kín được là tốt nhất. Cái đó cụ căn cứ diện tích phòng ngủ & trong trường hợp cần thiết điều chỉnh lại cả phòng ngủ.

Em không chi tiết nhưng đơn giản cụ đổi vị trí phòng thờ, sân phơi cũng có thể được. Ngay nếu như nhìn qua bố trí của cụ phòng thờ sẽ dính vị trí 1 phòng vệ sinh.
 

D.D.C

Xe điện
Biển số
OF-535615
Ngày cấp bằng
4/10/17
Số km
3,147
Động cơ
193,269 Mã lực
Nơi ở
Hà nội
Website
centicons.com
Kinh nhờ các cụ có chuyên môn, kinh nghiệm giúp đỡ góp ý về bố trí mặt bằng nhà, rất mong các cụ góp ý cho đôi dòng để em mở mang thêm, xin đội ơn các cụ.

Cũng xin trình bày thêm là: căn LK của em đã xây thô, TK ban đầu không có thang máy, nay muốn hoàn thiện mục đích để ở, muốn thêm cái thang máy nên phải bố trí lại đâm ra hơi khó, em chưa gặp bên thiết kế để có bản vẽ, nhưng em cũng đã hình dung trước bố trí theo nhu cầu gia đình là tầng 1 khách+bếp+gara, tầng 2 cho hai vợ chống già, tầng 3 cho các con, tầng 4 phờ thờ, phòng phơi đồ, hình dung xong thì em nháp lên bản vẽ.

Kính nhờ các cụ giúp góp ý với, nếu không thì các cụ bỏ quá cho, cám ơn các cụ.

MB1a.jpg
MB2a.jpg
Mb3a.jpg
MB4a.jpg
Cụ có bản cad không gửi qua em đồ lại theo nhu cầu của cụ xem sao . Phải lên bản vẽ kích thước cụ thể mới chi tiết được .
 

tomza

Xe buýt
Biển số
OF-538143
Ngày cấp bằng
22/10/17
Số km
899
Động cơ
43,659 Mã lực
Nơi ở
Chủ yếu trong nhà
Cụ có bản cad không gửi qua em đồ lại theo nhu cầu của cụ xem sao . Phải lên bản vẽ kích thước cụ thể mới chi tiết được .
Cám ơn cụ, em không có bản cad, em chưa đi gặp KTS nên chưa có bản vẽ, bản này em convert từ PDF sang,
 

clessking

Xe tăng
Biển số
OF-351016
Ngày cấp bằng
16/1/15
Số km
1,561
Động cơ
277,420 Mã lực
Kinh nhờ các cụ có chuyên môn, kinh nghiệm giúp đỡ góp ý về bố trí mặt bằng nhà, rất mong các cụ góp ý cho đôi dòng để em mở mang thêm, xin đội ơn các cụ.

Cũng xin trình bày thêm là: căn LK của em đã xây thô, TK ban đầu không có thang máy, nay muốn hoàn thiện mục đích để ở, muốn thêm cái thang máy nên phải bố trí lại đâm ra hơi khó, em chưa gặp bên thiết kế để có bản vẽ, nhưng em cũng đã hình dung trước bố trí theo nhu cầu gia đình là tầng 1 khách+bếp+gara, tầng 2 cho hai vợ chống già, tầng 3 cho các con, tầng 4 phờ thờ, phòng phơi đồ, hình dung xong thì em nháp lên bản vẽ.

Kính nhờ các cụ giúp góp ý với, nếu không thì các cụ bỏ quá cho, cám ơn các cụ.

MB1a.jpg
MB2a.jpg
Mb3a.jpg
MB4a.jpg
Hix, cụ up cái ảnh kích thước mờ quá em nhìn đau cả mắt.
Cụ cứ gặp thiết kế đi, họ sẽ tư vấn cho cụ 1 vài phương án.
Còn với ý tưởng sơ bộ của cụ thì em nghĩ ntn:
- Tầng 1 em thấy ok. Chỉ cần thiết kế hiện đại mở nhiều cửa kính ra tương tác với sân vườn là đẹp.
- Tầng 2 cụ đã tính thiết kế luôn thành 2 ngủ riêng biệt ạ?
- Tầng 3 cụ có thể làm thêm cột, đổ sàn để làm thêm 1 wc ở chỗ cửa ra sân tầng 2. Như vậy cụ muốn ngăn 2 ngủ giống tầng 2 (nghĩa là có khu sinh hoạt chung) cũng được mà cụ ngăn thành 1 phòng to 1 phòng bé cũng đc (cả 2 đều khép kín và vuông vắn). Ngoài ra cụ có thêm chỗ sân phơi ngoài trời trên tầng 4.
- Với phương án đổ thêm sàn wc tầng 3 thì tầng 4 để thờ chỗ cụ tính hay để ở ngủ chờ cũng đều đc.

Đấy là em tham gia dựa trên tư duy ý tưởng của cụ. Qua thiết kế và thực tế ngôi nhà còn có thể nhiều phương án tốt hơn nữa.
 

tomza

Xe buýt
Biển số
OF-538143
Ngày cấp bằng
22/10/17
Số km
899
Động cơ
43,659 Mã lực
Nơi ở
Chủ yếu trong nhà
Hix, cụ up cái ảnh kích thước mờ quá em nhìn đau cả mắt.
Cụ cứ gặp thiết kế đi, họ sẽ tư vấn cho cụ 1 vài phương án.
Còn với ý tưởng sơ bộ của cụ thì em nghĩ ntn:
- Tầng 1 em thấy ok. Chỉ cần thiết kế hiện đại mở nhiều cửa kính ra tương tác với sân vườn là đẹp.
- Tầng 2 cụ đã tính thiết kế luôn thành 2 ngủ riêng biệt ạ?
- Tầng 3 cụ có thể làm thêm cột, đổ sàn để làm thêm 1 wc ở chỗ cửa ra sân tầng 2. Như vậy cụ muốn ngăn 2 ngủ giống tầng 2 (nghĩa là có khu sinh hoạt chung) cũng được mà cụ ngăn thành 1 phòng to 1 phòng bé cũng đc (cả 2 đều khép kín và vuông vắn). Ngoài ra cụ có thêm chỗ sân phơi ngoài trời trên tầng 4.
- Với phương án đổ thêm sàn wc tầng 3 thì tầng 4 để thờ chỗ cụ tính hay để ở ngủ chờ cũng đều đc.

Đấy là em tham gia dựa trên tư duy ý tưởng của cụ. Qua thiết kế và thực tế ngôi nhà còn có thể nhiều phương án tốt hơn nữa.
Cám ơn cụ, ý tưởng của cụ cũng hay, em sẽ cân nhắc thêm, nếu làm theo ý tưởng này thì tầng 3 và 4 dễ bố trí vuông phòng, wc thoáng, chỗ phơi có nắng gió, vì nhà em hướng tây.

- Còn tầng 2 thì ý tưởng của em là có chỗ ngủ tách ra cho 2 vợ chồng già (là em, khà khà), cho thoải mái tránh làm mất giấc ngủ của nhau, mà vẫn có chỗ sinh hoạt chung, cũng chỉ nghĩ vậy chứ chưa nghĩ được phương án nào hay hơn.
Cám ơn cụ lần nữa :)
 

moonlife

[Tịch thu bằng lái]
Biển số
OF-203464
Ngày cấp bằng
24/7/13
Số km
8,687
Động cơ
368,229 Mã lực
Kinh nhờ các cụ có chuyên môn, kinh nghiệm giúp đỡ góp ý về bố trí mặt bằng nhà, rất mong các cụ góp ý cho đôi dòng để em mở mang thêm, xin đội ơn các cụ.

Cũng xin trình bày thêm là: căn LK của em đã xây thô, TK ban đầu không có thang máy, nay muốn hoàn thiện mục đích để ở, muốn thêm cái thang máy nên phải bố trí lại đâm ra hơi khó, em chưa gặp bên thiết kế để có bản vẽ, nhưng em cũng đã hình dung trước bố trí theo nhu cầu gia đình là tầng 1 khách+bếp+gara, tầng 2 cho hai vợ chống già, tầng 3 cho các con, tầng 4 phờ thờ, phòng phơi đồ, hình dung xong thì em nháp lên bản vẽ.

Kính nhờ các cụ giúp góp ý với, nếu không thì các cụ bỏ quá cho, cám ơn các cụ.

MB1a.jpg
MB2a.jpg
Mb3a.jpg
MB4a.jpg
Cách bố trí này thực sự bế tắc, theo em cụ nên làm lại từ đầu, thửa đất ko phải xấu mà làm dở quá. Cần xem có cấy được thêm sàn trên vị trí để xe ko? Có thay đổi được công năng khu phía sau ko? Thang có cấy sang vị trí khác đc ko? Sau đó cân đối cả về tài chính rồi tiến hành làm lại concept, làm lại thiết kế từ đầu.
 

saiback

Xe tăng
Biển số
OF-178660
Ngày cấp bằng
26/1/13
Số km
1,124
Động cơ
310,196 Mã lực
Nơi ở
43 Nguyễn Thị Định, Trung Hòa, Cầu Giấy
Website
www.saiback.com
Nếu làm thang máy thì nên đẩy bếp lên tầng trên cùng sẽ đẹp hơn và hay sử dụng hơn😁

Mặt tiền nhà cụ nhìn hình như 7.3m sâu 14.2m khá tương đồng nhà e (8.8x 12m). Không nên chia phòng trước sau mà chia 2 phòng song song có ban công thang máy để cuối. Còn cái khe thoáng tầng 1 cụ nên làm thành bể cá koi cho mát mắt.
 
Chỉnh sửa cuối:

Tumi211179

Xe đạp
Biển số
OF-851892
Ngày cấp bằng
14/3/24
Số km
45
Động cơ
480 Mã lực
Tuổi
46
Kinh nhờ các cụ có chuyên môn, kinh nghiệm giúp đỡ góp ý về bố trí mặt bằng nhà, rất mong các cụ góp ý cho đôi dòng để em mở mang thêm, xin đội ơn các cụ.

Cũng xin trình bày thêm là: căn LK của em đã xây thô, TK ban đầu không có thang máy, nay muốn hoàn thiện mục đích để ở, muốn thêm cái thang máy nên phải bố trí lại đâm ra hơi khó, em chưa gặp bên thiết kế để có bản vẽ, nhưng em cũng đã hình dung trước bố trí theo nhu cầu gia đình là tầng 1 khách+bếp+gara, tầng 2 cho hai vợ chống già, tầng 3 cho các con, tầng 4 phờ thờ, phòng phơi đồ, hình dung xong thì em nháp lên bản vẽ.

Kính nhờ các cụ giúp góp ý với, nếu không thì các cụ bỏ quá cho, cám ơn các cụ.

MB1a.jpg
MB2a.jpg
Mb3a.jpg
MB4a.jpg
Cụ cho hỏi Căn này bn m2 đất vậy cụ? Ở khu đô thị nào vậy cụ?
 

archituan

Xe buýt
Biển số
OF-482639
Ngày cấp bằng
7/1/17
Số km
576
Động cơ
195,545 Mã lực
Cụ gặp thiết kế đi. Cứ phải ra đề bài, đơn vị thiết kế ngồi giải bài mới ra vấn đề được. Chứ hỏi trên này không đi tới đâu đâu. Người có chuyên môn thì cũng phải nghiên cứu, phác thảo, cân đối đủ kiểu mới ra phương án nữa là ngồi cưỡi ngựa xem voi
 

DỰ BỊ

Xe hơi
Biển số
OF-792344
Ngày cấp bằng
5/10/21
Số km
148
Động cơ
22,542 Mã lực
Nơi ở
Hà Nội
Website
www.thangmayuytin.com
Kinh nhờ các cụ có chuyên môn, kinh nghiệm giúp đỡ góp ý về bố trí mặt bằng nhà, rất mong các cụ góp ý cho đôi dòng để em mở mang thêm, xin đội ơn các cụ.

Cũng xin trình bày thêm là: căn LK của em đã xây thô, TK ban đầu không có thang máy, nay muốn hoàn thiện mục đích để ở, muốn thêm cái thang máy nên phải bố trí lại đâm ra hơi khó, em chưa gặp bên thiết kế để có bản vẽ, nhưng em cũng đã hình dung trước bố trí theo nhu cầu gia đình là tầng 1 khách+bếp+gara, tầng 2 cho hai vợ chống già, tầng 3 cho các con, tầng 4 phờ thờ, phòng phơi đồ, hình dung xong thì em nháp lên bản vẽ.

Kính nhờ các cụ giúp góp ý với, nếu không thì các cụ bỏ quá cho, cám ơn các cụ.

MB1a.jpg
MB2a.jpg
Mb3a.jpg
MB4a.jpg
Nếu có thang máy cụ nên đưa nhà bếp nên tầng trên cùng để không gian tầng 1 sinh hoạt chuyển đổi công năng sử dụng cũng dễ hơn đối với diện tích nhà nhỏ và cũng là kiểu thiết kế mọi người hay sử dụng hiện nay.
 

Laimoihochoi1981

Xe đạp
Biển số
OF-729411
Ngày cấp bằng
16/5/20
Số km
24
Động cơ
71,905 Mã lực
Tuổi
45
1000034531.jpg

Bác nào có kinh nghiệm góp ý mình cái'mặt bằng này ổn không. Kích thước nhỏ nên khó bố trí vệ sinh không phải chui gầm cầm thang quá. Cám ơn
 

DeLyon

Xe tăng
Biển số
OF-654586
Ngày cấp bằng
17/5/19
Số km
1,339
Động cơ
623,536 Mã lực
1000034531.jpg

Bác nào có kinh nghiệm góp ý mình cái'mặt bằng này ổn không. Kích thước nhỏ nên khó bố trí vệ sinh không phải chui gầm cầm thang quá. Cám ơn
Thửa đất cụ như nào? Hướng gì? Nhu cầu như nào thì mới góp ý đc chứ.
Cỏn cảm quan đầu tiên thì tk này ko dùng đc cụ nhé.
 

Red2010

Xe điện
Biển số
OF-172598
Ngày cấp bằng
19/12/12
Số km
2,279
Động cơ
364,674 Mã lực
Nơi ở
Hà Nội
1000034531.jpg

Bác nào có kinh nghiệm góp ý mình cái'mặt bằng này ổn không. Kích thước nhỏ nên khó bố trí vệ sinh không phải chui gầm cầm thang quá. Cám ơn
Cụ nhờ KTS bố trí nội thất kỹ 1 tí, cứ quăng đồ thư viện vào sau này hoàn thiện nội thất lại mệt đầu. Cần kỹ hơn có thể liên hệ em.
 

Laimoihochoi1981

Xe đạp
Biển số
OF-729411
Ngày cấp bằng
16/5/20
Số km
24
Động cơ
71,905 Mã lực
Tuổi
45
Thửa đất cụ như nào? Hướng gì? Nhu cầu như nào thì mới góp ý đc chứ.
Cỏn cảm quan đầu tiên thì tk này ko dùng đc cụ nhé.
Diện tích đất chỉ có vậy. Hướng cửa chính và hướng bàn thờ là hướng nam. Nhu cầu tầng 1 chỉ cần phòng ngủ tạm còn tầng trên thì phòng ngủ chính. Trước mặt cửa còn một ít đất trống để làm vườn và để xe Bác ạ. Mình xoay các kiểu đang thấy mỗi kiểu bếp liền khách này thôi.
 

DeLyon

Xe tăng
Biển số
OF-654586
Ngày cấp bằng
17/5/19
Số km
1,339
Động cơ
623,536 Mã lực
Diện tích đất chỉ có vậy. Hướng cửa chính và hướng bàn thờ là hướng nam. Nhu cầu tầng 1 chỉ cần phòng ngủ tạm còn tầng trên thì phòng ngủ chính. Trước mặt cửa còn một ít đất trống để làm vườn và để xe Bác ạ. Mình xoay các kiểu đang thấy mỗi kiểu bếp liền khách này thôi.
Như vậy là đất hình chữ L, phần đuôi L ngắn (đang tk phòng ngủ nhỏ) lại là mặt tiền ạ? Phần sảnh cửa chính (gạch ô vuông nhỏ) kia có phải đất làm sân vườn ko?
Các bên hàng xóm ra sao? Có thoáng ko? Có mở đc cửa ko?
Thiếu nhiều dữ liệu thông tin quá cụ ạ.
 

Laimoihochoi1981

Xe đạp
Biển số
OF-729411
Ngày cấp bằng
16/5/20
Số km
24
Động cơ
71,905 Mã lực
Tuổi
45
Như vậy là đất hình chữ L, phần đuôi L ngắn (đang tk phòng ngủ nhỏ) lại là mặt tiền ạ? Phần sảnh cửa chính (gạch ô vuông nhỏ) kia có phải đất làm sân vườn ko?
Các bên hàng xóm ra sao? Có thoáng ko? Có mở đc cửa ko?
Thiếu nhiều dữ liệu thông tin quá cụ ạ.
Đúng rồi. Hướng cửa là hướng nam còn ít đất mở được cửa. Hướng tây và đông mở đc cửa vì là ngõ nhỏ. Hướng sau nhà là hướng bắc giáp gianh nhà hàng xóm. Mình băn khoăn cái phòng khách liên thông bếp kia cho thoáng nhà thì thiết kế như nào cho đẹp. Phòng khách nhỏ lại muốn để cái bàn thờ 1m hướng nam luôn nên không làm được chỗ để tivi. Giữa khác và bếp định làm vách ngăn bar mini.
 

Ms Thảo Nguyễn Vinhomes

Xe điện
{Kinh doanh Bất động sản}
{Kinh doanh Bất động sản}
Biển số
OF-870166
Ngày cấp bằng
9/3/24
Số km
2,615
Động cơ
16,252 Mã lực
Tuổi
28
Website
thaonguyenvilla.com
Kinh nhờ các cụ có chuyên môn, kinh nghiệm giúp đỡ góp ý về bố trí mặt bằng nhà, rất mong các cụ góp ý cho đôi dòng để em mở mang thêm, xin đội ơn các cụ.

Cũng xin trình bày thêm là: căn LK của em đã xây thô, TK ban đầu không có thang máy, nay muốn hoàn thiện mục đích để ở, muốn thêm cái thang máy nên phải bố trí lại đâm ra hơi khó, em chưa gặp bên thiết kế để có bản vẽ, nhưng em cũng đã hình dung trước bố trí theo nhu cầu gia đình là tầng 1 khách+bếp+gara, tầng 2 cho hai vợ chống già, tầng 3 cho các con, tầng 4 phờ thờ, phòng phơi đồ, hình dung xong thì em nháp lên bản vẽ.

Kính nhờ các cụ giúp góp ý với, nếu không thì các cụ bỏ quá cho, cám ơn các cụ.

MB1a.jpg
MB2a.jpg
Mb3a.jpg
MB4a.jpg
Em thấy tk hiện tại nếu không thay đổi gì thì chỗ cái thang máy e đẩy về wc.
Mà đất cụ vuông nhưng cảm quan lại thiết kế thò thụt nhiều quá, đâm ra lại hẹp phòng.
 
Thông tin thớt
Đang tải

Bài viết mới

Top